1 399 000,00 PLN (6 537,38 PLN)

Piękny drewniany dom duża działka

Dom na sprzedaż,
Józefów

Kontakt z agentem: EKSPERCI.pro Marta Nalepa
Opis nieruchomości

Dom drewniany 214,4 m² garaż Działka 1962 m² – Józefów, ul. Nadwiślańska I Zielona okolica, MPZP z dopuszczeniem zabudowy mieszkaniowej, cena do negocjacji!

Na sprzedaż przestronny dom o konstrukcji drewnianej z wolnostojącym garażem dwustanowiskowym, położony na pięknej działce o powierzchni 1962 m², w otoczeniu starodrzewu sosnowego, przy ul. Nadwiślańskiej w Józefowie.

Dom o powierzchni 214,4 m² – układ pomieszczeń:
Piwnica:

  • Sauna
  • Kotłownia
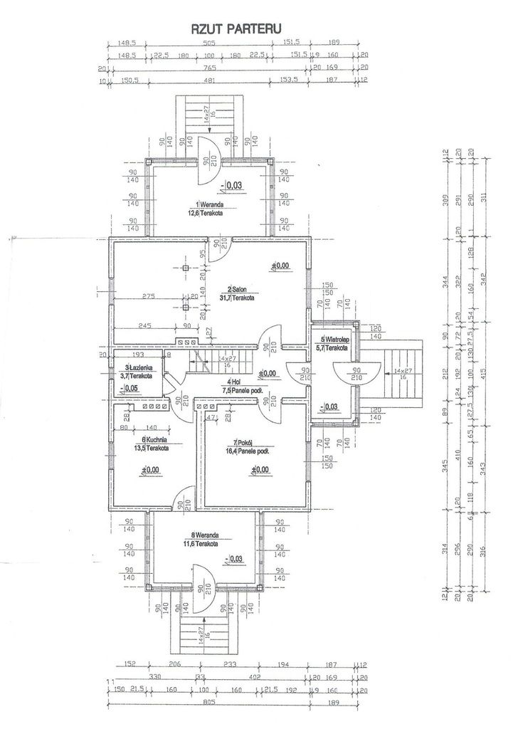
Parter:
  • Salon – 31,7 m²
  • Kuchnia – 13,5 m²
  • Gabinet – 16,4 m²
  • Weranda 1 – 11,6 m²
  • Weranda 2 – 12,6 m²
  • Hol, wiatrołap, łazienka
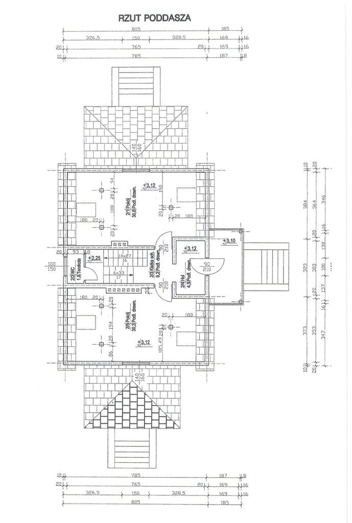
Piętro:
  • Sypialnia 1 – 30,3 m²
  • Sypialnia 2 – 30,8 m²
  • WC, hol

Dodatkowo: garaż wolnostojący na 2 samochody.

Media i dojazd:
  • Prąd, woda miejska, szambo
  • Dojazd z drogi gminnej
Plan miejscowy (MPZP) – RLz 22 – kluczowe zapisy:
  • Dopuszczenie zabudowy jednorodzinnej (wolnostojącej lub bliźniaczej)
  • Min. działka: 1500 m²
  • Max. wysokość: 11 m / 2 kondygnacje poddasze
  • Zakaz wolnostojących garaży i budynków technicznych (muszą być w bryle budynku)
  • Min. 80% powierzchni biologicznie czynnej – z zachowaniem leśnego charakteru

Dodatkowa możliwość:
Istnieje opcja dokupienia sąsiedniej działki (4506 m²) – idealne rozwiązanie dla inwestora lub dewelopera.

Zainteresowany? Skontaktuj się z nami – chętnie udzielimy więcej informacji i zaprezentujemy nieruchomość na żywo.

Cena: do negocjacji.

Mapa
Kontakt z agentem

EKSPERCI.pro Marta Nalepa

Marta Nalepa
Nieprawidłowy adres E-mail

Strona korzysta z plików cookie w celu realizacji usług zgodnie z Polityką prywatności. Możesz określić warunki przechowywania lub dostępu do cookie w Twojej przeglądarce.