1 380 000,00 PLN (12 963,83 PLN)

Nowoczesny dom. Garaż. Strych 32 mkw.

Dom na sprzedaż,
Warszawa, Mochtyńska

Kontakt z agentem: EKSPERCI.pro Marta Nalepa
Karolina Gadzińska
Opis nieruchomości

Nowoczesny dom w cenie mieszkania z 32-metrowym strychem w BONUSIE
Szukasz nowoczesnego domu dla rodziny lub wymagającej pary?
Marzysz o własnym ogrodzie i sielskim spokoju bez rezygnacji z warszawskiego adresu?
Sprawdź ofertę sprzedaży 4-pokojowego segmentu o powierzchni 106,45 mkw. - z dodatkowym, 32-metrowym strychem w cenie - w kameralnej części Białołęki, na Kobiałce.


Skrajny segment z dużym ogrodem
Oferujemy skrajny segment o łącznej powierzchni 106,45 mkw. (użytkowej 98,62 mkw.), zaprojektowany w modnym stylu nowoczesnej stodoły. Budynek usytuowany jest na ustawnej, narożnej działce o powierzchni 255 mkw., co w porównaniu do jednostek wewnętrznych zapewnia większy ogród i poczucie prywatności i swobody.
Segment stanowi część kameralnej, ogrodzonej inwestycji przy ul. Mochtyńskiej - zaledwie cztery lokale tworzą tu bezpieczną i prestiżową przestrzeń do życia.
Nieruchomość leży na Kobiałce, w sąsiedztwie Puszczy Słupeckiej. To bardzo zielona część Białołęki, która łączy sielski spokój z pełną infrastrukturą: w pobliżu znajdziesz szkoły, sklepy, siłownię, a nawet ładowarkę do aut elektrycznych.
Prywatny wjazd od ul. Mochtyńskiej gwarantuje szybki dostęp do komunikacji miejskiej dowożącej prosto do metra Bródno.

Przestrzeń pełna światła
Budynek zachwyca formą nowoczesnej stodoły, a wyjątkowego charakteru nadają mu stylowe wykusze garaży oraz wnęki wejściowe, ukryte pod efektownym frontowym podcieniem.
To solidna i rzetelna konstrukcja, w której deweloper postawił na bezkompromisową jakość: budynek został doskonale ocieplony, a zastosowanie wysokiej klasy okien gwarantuje doskonałe parametry termiczne o każdej porze roku.
Segment jest bardzo funkcjonalny - oferuje dwa poziomy inteligentnie zaprojektowanej przestrzeni oraz dodatkowy 32-metrowy strych. Dzięki wysokiej ściance kolankowej na drugiej kondygnacji (aż 130 cm) zyskujesz maksymalną powierzchnię do wykorzystania.
Projekt stawia na światło - od panoramicznych okien tarasowych, które łączą salon z ogrodem, po efektowne przeszklenia nad garażem i okna dachowe. Już od progu czuć tu wyjątkowy klimat.
Inwestycja oddawana jest w standardzie deweloperskim - najtrudniejsze prace budowlane są już zakończone, a przed Tobą już tylko przyjemność aranżacji wnętrz według własnej wizji.
Wszystkiem media miejskie: woda, kanalizacja, gaz.

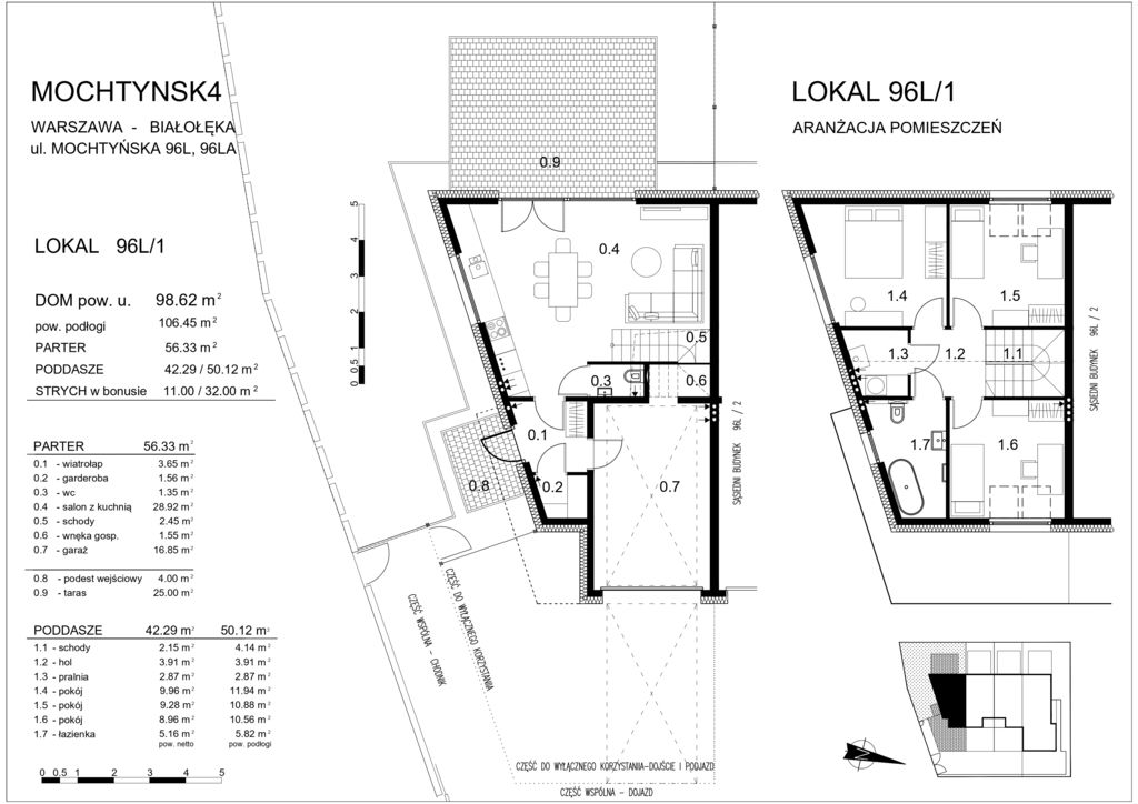
Parter (56.33 mkw.)
to funkcjonalna strefa dzienna, w skład której wchodzą:
- przestronny salon połączony z otwartą kuchnią i panoramicznym wyjściem na taras,
- toaleta,
- funkcjonalna garderoba tuż przy wejściu,
- praktyczna wnęka gospodarcza,
- wiatrołap,
- duży, utwardzony taras, który stanowi naturalne przedłużenie salonu w stronę ogrodu,
- garaż w bryle budynku
Na drugą kondygnację prowadzą wygodne schody żelbetowe zabiegowe.

Druga kondygnacja (42,29 mkw.) pełni funkcję strefy prywatnej i obejmuje:
- 3 ustawne pokoje,
- łazienka,
- osobna pralnia,
- wygodny hol

Dodatkowym atutem jest aż 32-metrowy strych (w cenie nieruchomości), na który mogą prowadzić składane schody lub drabinka.
Dopełnieniem całości jest prywatny, starannie ogrodzony ogród.
Ogrodzenie od ulicy przęsła murowane z grafitowych bloczków ogrodzeniowych, z pozostałych stron i między segmentami wykonane z ażurowych paneli 3d lakierowanych, furtka z elektrozaczepem otwieranym domofonem / wideodomofonem,
brama wjazdowa przesuwna otwierana pilotami,
oświetlenie zewnętrzne na ścianach budynku doświetlające teren wokół budynku,
skrzynki pocztowe na ogrodzeniu, stanowisko śmietnikowe wspólne dla mieszkańców na kosze odpadów zmieszanych,

Zielona część stolicy

Popularność Białołęki rośnie z każdym rokiem. Zawdzięcza to nie tylko atrakcyjnym cenom nieruchomości, ale przede wszystkim unikalnemu klimatowi. To idealne miejsce dla osób, które cenią bliskość natury i chcą odetchnąć od miejskiego smogu - tutejsze powietrze jest znacznie czystsze niż w centrum stolicy.
Białołęka uwodzi zielenią i zachęca do aktywnego wypoczynku. Tereny nad Wisłą i liczne parki przyciągają spacerowiczów oraz biegaczy, a miłośników dwóch kółek cieszy obecność jednej z najpiękniejszych tras rowerowych w Warszawie. Mieszkańcy doceniają dzielnicę również za wysoki poziom bezpieczeństwa, co jest kluczowe dla rodzin z dziećmi.
Okolica to prawdziwy raj dla sportowców. Znajdziesz tu renomowane kluby fitness, kameralne siłownie oraz profesjonalne korty do tenisa i squasha. Na większe zakupy zaprasza nowoczesna Galeria Północna z ofertą ponad 200 sklepów, kinem i ulubionymi kawiarniami. Na co dzień mieszkańcy mogą korzystać z bogatej sieci marketów (w tym Auchan) oraz licznych punktów usługowych. Lokalne salony kosmetyczne czy barberskie jakością w niczym nie ustępują tym z centrum miasta.
Co ważne, Białołęka jest świetnie skomunikowana. Rozbudowana sieć autobusowa, tramwaje oraz bliskość metra pozwalają na sprawne i swobodne przemieszczanie się po całej Warszawie.

Zastanawiasz się, czy to oferta właśnie dla Ciebie?
Umów się na prezentację i poznaj Białołękę w jej najbardziej sielskim wydaniu.
Zapraszamy do kontaktu!




Mapa
Kontakt z agentem

EKSPERCI.pro Marta Nalepa

Karolina Gadzińska
Nieprawidłowy adres E-mail

Strona korzysta z plików cookie w celu realizacji usług zgodnie z Polityką prywatności. Możesz określić warunki przechowywania lub dostępu do cookie w Twojej przeglądarce.