4 450 000,00 PLN (30 651,60 PLN)

VILLA MIEJSKA NA ZIELONYM MARYMONCIE

Mieszkanie na sprzedaż,
Warszawa, Raduńska

Kontakt z agentem: EKSPERCI.pro Marta Nalepa
Karolina Gadzińska
Opis nieruchomości

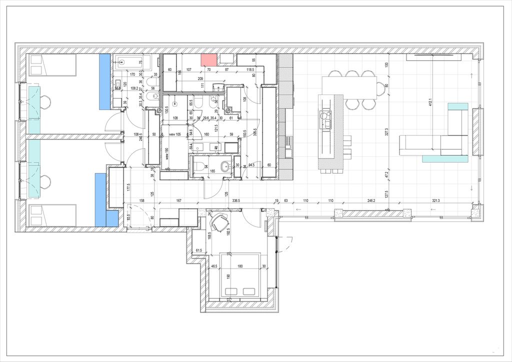
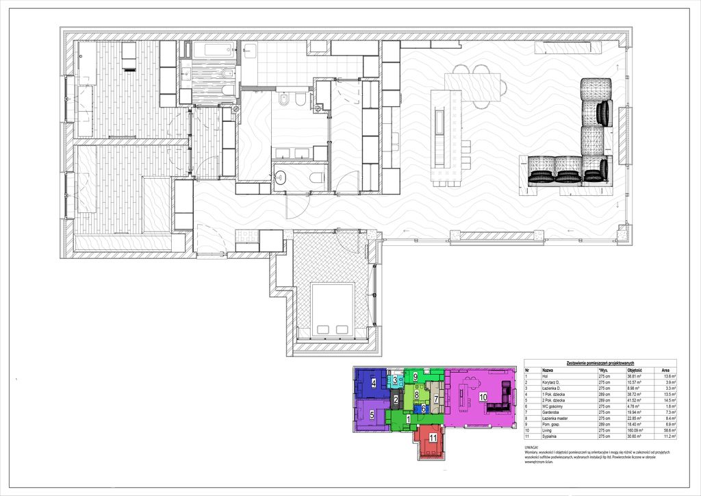
Wyobraź sobie poranek, w którym zamiast hałasu miasta budzi Cię śpiew ptaków, a pierwszą kawę pijesz na własnym tarasie wśród zieleni. Po chwili spacerem dochodzisz do metra, a w kilkanaście minut jesteś w centrum Warszawy. Wieczorem wracasz do kameralnego, cichego miejsca, w którym życie płynie swoim rytmem.Ten apartament przy ul. Raduńskiej, kameralnej cichej uliczce na styku Żoliborza i zielonego Marymontu, to coś więcej niż mieszkanie. To willa miejska -- parterowy apartament z tarasami i dużym ogrodem, zaprojektowany tak, by dawać komfort życia jak w domu, przy zachowaniu wszystkich zalet życia w mieście.To propozycja dla osób, które chcą połączyć spokój, zieleń i prywatność z codzienną wygodą -- niezależnie od tego, czy szukają rodzinnego miejsca z osobnymi sypialniami dla domowników, wygodnej przestrzeni dla pary czy alternatywy dla domu jednorodzinnego bliżej centrum.Przemyślany układ -- jak w domu, tylko wygodniejApartament o powierzchni 145,18 m² został zaprojektowany przez doświadczonych architektów wnętrz, z myślą o funkcjonalności i komforcie na lata. Układ podzielono na dwie wyraźne strefy:- Strefa dzienna: -- duży salon 60m2 z wyjściem na tarasy i ogród, kuchnia z wyspą i częścią jadalnianą, -- miejsce na duży stół rodzinny, wygodną kanapę, kącik telewizyjny lub biblioteczkę.- Strefa prywatna -- komfortowa część mieszkalna, którą można łatwo dopasować do różnych etapów życia: -- dwie osobne sypialnie (np. dla dzieci, gości, gabinetu, pokoju hobby) z własną łazienką i garderobą, wydzielone od części dziennej, -- sypialnia główna (master) z widokiem na zieleń, prywatną łazienką, obszerną garderobą oraz bezpośrednim wejściem do sauny fińskiej (sucha / półparowa), -- osobne pomieszczenie gospodarcze z pralnią, suszarnią, zabudowanymi szafami i funkcjonalnym miejscem do przechowywania.Taki układ zapewnia poczucie prywatności (każdy ma swoją przestrzeń), a jednocześnie pozwala spotykać się w dużej, jasnej części wspólnej -- jak w dobrze zaprojektowanym domu.Prywatny ogród i tarasy -- 200 m² zielonej przestrzeni tylko dla CiebieNajwiększym atutem tej nieruchomości jest ok. 200 m² własnej, zagospodarowanej i południowej przestrzeni zewnętrznej:- ogród ok. 200 m² -- z zielenią, drzewami i nasadzeniami zapewniającymi prywatność, i strefą chill out- dwa przestronne tarasy (po 50m2 każdy) -- idealne na leżaki, stół z krzesłami, letnią kuchnię i strefę relaksu.Ogród posiada automatyczny system nawadniania, oświetlenie oraz przyłącze wody, co sprawia, że jest łatwy w utrzymaniu. Dzięki położeniu budynku w lekkiej „niecce" i otoczeniu zieleni ogród jest naturalnie osłonięty -- daje poczucie intymności na co dzień.To przestrzeń, której w mieście właściwie się nie spotyka -- namiastka własnego domu, bez konieczności opieki nad dużą działką.Standard wykończeniaCałe wnętrze zostało wykończone „pod klucz" z dbałością o detale.- Materiały premium: -- podłogi z włoskiego gresu oraz wysokiej klasy drewna, -- blaty kuchenne z kamienia i spieków, -- starannie dobrane okładziny, oświetlenie LED, szlachetne faktury i stonowana kolorystyka.- Zabudowy na wymiar: -- wszystkie szafy, fronty, kuchnia, drzwi wewnętrzne i elementy stolarskie zostały zaprojektowane i wykonane przez renomowane studio meblowe, zgodnie z autorskim projektem architekta. To spójna, ponadczasowa całość, która nie wymaga żadnych przeróbek.- Wyposażenie w cenie: -- w cenie sprzedaży zawarte są pełne zabudowy stałe oraz wysokiej klasy sprzęt AGD (m.in. Siemens, Liebherr, w tym winiarka na 42 butelki), system kina domowego oraz zabudowy stolarskie -- to realna oszczędność rzędu kilkuset tysięcy złotych, które przy zakupie „gołego" deweloperskiego mieszkania trzeba by dopiero zainwestować.- Komfort cieplny: -- ogrzewanie podłogowe w całym apartamencie z podziałem na strefy, -- przygotowane instalacje pod klimatyzację (nie była dotychczas potrzebna, ale możliwość łatwego montażu jest zapewniona).Bezpieczeństwo, technologia, wygoda*Apartament jest gotowy na współczesne potrzeby domowników:- System alarmowy z czujnikami ruchu i kontaktronami na oknach,- Rolety zewnętrzne antywłamaniowe w strefach najbardziej prywatnych,- Światłowód, pełna sieć LAN, szybkie Wi-Fi -- idealne warunki do pracy zdalnej i rozrywki,- Oświetlenie LED w całym mieszkaniu, dopracowane sceny świetlne, głośniki w suficie,- Możliwość montażu ładowarki do samochodu elektrycznego oraz paneli na dachu,Kameralny budynek i wygoda na co dzieńBudynek to kameralna villa miejska z 2017 roku składająca się jedynie z trzech apartamentów -- po jednym na każdej kondygnacji. Wspólnota to tylko trzy rodziny, które we własnym gronie zarządzają nieruchomością z pomocą małej firmy zarządczej -- bez skomplikowanej administracji i anonimowości dużych osiedli.- Czynsz wynosi ok. 1 500 zł miesięcznie (w tym zaliczki na media, fundusz remontowy, utrzymanie części wspólnych).- W bryle budynku znajduje się garaż podziemny -- do apartamentu przynależą dwa bardzo duże miejsca postojowe (ok. 63,5 m każde) oraz komórka lokatorska ok. 8 m² -- wszystkie te elementy sprzedawane są razem z mieszkaniem za dopłatą 250 000 zł (2100 000 zł za miejsca 50 000 zł za komórkę).To rozwiązanie, które doceni każdy, kto chce mieć komfort parkowania, miejsce na rowery, narty, wózki czy rzeczy sezonowe -- bez kompromisów.Zielona okolica i świetna komunikacjaMarymont to jedna z najbardziej zielonych części Warszawy -- z własnym mikroklimatem i dostępem do terenów rekreacyjnych:- Las Bielański -- ok. 6--7 minut spacerem, idealny na poranne biegi i spacery,- Park Kępa Potocka, Stawy Kellera, bulwary nad Wisłą -- w zasięgu krótkiego spaceru lub przejażdżki rowerem,- Liczne trasy rowerowe i ścieżki spacerowe, siłownie plenerowe, boiska, place zabaw,- W promieniu kilku minut pieszo -- bazarek, sklepy, usługi, szkoły i przedszkola; w okolicy znajdziesz zarówno kameralne knajpy, jak i większe punkty usługowe.Komunikacja: - ok. 10 minut spacerem do metra Marymont, ok. 12 minut do metra Słodowiec, w przyszłości M.St.Warszawa w swoim studium rozwoju planuje kolejne 2 linię metra, ok 400m stacja M4 Ruda oraz ok 300m stacja przedłużonej M2 Potok, sama stacja Marymont ma stać się stacja węzłową dla 3 linii.- przystanek autobusowy ok. 100 m od apartamentu,- szybki wyjazd na S8/S7 -- świetne połączenie z całą aglomeracją i trasami wylotowymi z miasta.Perspektywa inwestycyjnaTa część Warszawy dynamicznie się rozwija -- nowe inwestycje mieszkaniowe premium w okolicy oferowane są już dziś w cenach rzędu 28--41 tys. zł/m² w standardzie deweloperskim, często bez ogródków i w budynkach wielorodzinnych.Kameralne wille miejskie z prywatnymi ogrodami to wciąż rzadkość -- ich podaż jest bardzo ograniczona i niełatwo znaleźć podobną ofertę. To sprawia, że tego typu nieruchomość ma nie tylko wartość użytkową, ale również stabilny potencjał inwestycyjny.Cena i najważniejsze informacje w skrócie- Cena apartamentu (145,18 m²): 4 450 000 zł- Dwa miejsca garażowe (ok. 63,5 m każde) komórka lokatorska 8 m²: 250 000 zł (sprzedaż łączna z mieszkaniem)- Przestrzeń zewnętrzna: ok. 200 m² (ogród dwa tarasy)- Liczba pokoi: 4 (duży salon 3 sypialnie, 3 łazienki, 2 garderoby i pomieszczenie gospodarcze)- Rok budowy budynku: 2017- Forma własności: pełna własność (księga wieczysta)- Czynsz wspólnoty: ok. 1 500 zł/miesiącZapraszamJeżeli szukasz miejsca, które łączy kameralność willi, komfort domu i wygodę mieszkania w mieście -- ten apartament zasługuje na Twoją uwagę.Zapraszam na indywidualną prezentację -- to nieruchomość, którą najlepiej poczuć na żywo: usiąść na tarasie, wsłuchać się w ciszę Marymontu i zobaczyć, jak mogłoby wyglądać Twoje codzienne życie w tym miejscu.

Mapa
Kontakt z agentem

EKSPERCI.pro Marta Nalepa

Karolina Gadzińska
Nieprawidłowy adres E-mail

Strona korzysta z plików cookie w celu realizacji usług zgodnie z Polityką prywatności. Możesz określić warunki przechowywania lub dostępu do cookie w Twojej przeglądarce.