4 000,00 PLN (114,51 PLN)

Zielona okolica - wynajem na Tarchominie

Mieszkanie na wynajem,
Warszawa, Talarowa

Kontakt z agentem: EKSPERCI.pro Marta Nalepa
Karolina Gadzińska
Opis nieruchomości

Zapraszamy na Tarchomin, na którym mamy dzisiaj do zaoferowania niezwykłe mieszkanie w nowym budownictwie.
Zielona okolica i spokojna część Białołęki sprawią, że bez wątpienia będziesz chciał tutaj zamieszkać.

Okolica: 
Tarchomin to bardzo zielona okolica, posiadająca wiele sklepów oraz lokali usługowych. W drugim sąsiadującym bloku znajduje się Żabka - idealna na szybkie, codzienne zakupy. Również blisko znajduje się sklep Netto. 
Dużym atutem jest również Galeria Północna, niezwykle ceniona przez mieszkańców tej części Warszawy. 

Również dojazd do centrum miasta nie będzie stanowił problemu. Z najbliższego przystanku tramwajowego do metra Młociny dojazd zajmuje około 13 minut. 

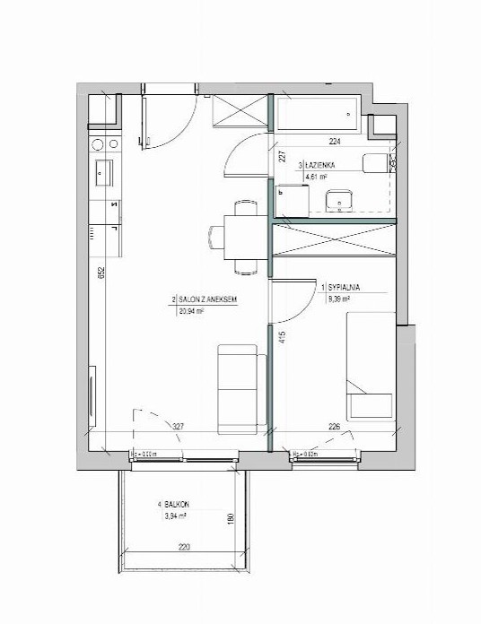
Plan mieszkania:
Sercem mieszkania jest przestronny salon, składający się z 2 części. Pierwsza z nich - część kuchenna to w pełni wyposażona kuchnia ( płyta indukcyjna, zmywarka, piekarnik) oraz przestrzeń jadalniana z okrągłym stołem. 

Druga część salonu to przestrzeń wypoczynkowa, w której znajduje się wygodna sofa oraz telewizor. Stąd również możesz wyjść na balkon, który będzie idealnym miejscem do relaksu, szczególnie w gorące dni. 

Kolejnym pomieszczeniem jest sypialnia, w której znajduje się duże łóżko oraz szafa. 
Ostatnim z pomieszczeń jest łazienka z wanną. Komfort mieszkańców zwiększy również miejsce postojowe, znajdujące się w hali garażowej. 

Warunki:
- Minimalny okres wynajmu: 12 miesięcy,
- Kaucja: jednomiesięczny czynsz najmu,
- Umowa najmu okazjonalnego,
- Do kwoty najmu należy doliczyć opłatę za prąd.

Plan Nieruchomości
Mapa
Kontakt z agentem

EKSPERCI.pro Marta Nalepa

Karolina Gadzińska
Nieprawidłowy adres E-mail

Strona korzysta z plików cookie w celu realizacji usług zgodnie z Polityką prywatności. Możesz określić warunki przechowywania lub dostępu do cookie w Twojej przeglądarce.